Expose anfordern


Expose anfordern
995.000 Euro

Wohnen mit Geschichte – Neubau unter Reet am Eiderdeich

Traumhafte Lage am Eiderdeich

Inmitten der weitläufigen Naturlandschaft Eiderstedts, im idyllischen Ortsteil Hämmerdeich der Gemeinde Oldenswort, entsteht ein außergewöhnliches Neubauprojekt, das Tradition und Moderne auf beeindruckende Weise vereint. Dieses exklusive Reetdachhaus wurde mit viel Feingefühl aus den alten Ziegeln eines historischen Gebäudes errichtet. Jeder einzelne Stein blickt auf mehrere hundert Jahre Geschichte zurück – und lebt nun in diesem einzigartigen Objekt weiter. Der Abriss des ursprünglichen Hauses wurde vom NDR begleitet, wodurch auch die Entstehung dieses Neubaus dokumentiert wurde.
Das Grundstück umfasst großzügige fast 1.800 Quadratmeter und bietet mit seiner Lage direkt am Eiderdeich eine grüne Oase der Ruhe. Das Wohnhaus selbst verfügt über ca. 114 Quadratmeter Wohnfläche, verteilt auf vier lichtdurchflutete Zimmer. Schon beim Betreten des Hauses wird die hochwertige Ausführung deutlich: Über eine elegante Eichenholztreppe gelangt man ins Obergeschoss, während im Erdgeschoss ein großzügiger, offen gestalteter Wohn- und Essbereich mit integrierter Küche auf Sie wartet. Besonders hervorzuheben ist das bodentiefe, übergroße Fensterelement, das nicht nur für eine unglaubliche Helligkeit sorgt, sondern auch den Blick ins umliegende Grün freigibt und den Innen- mit dem Außenraum harmonisch verbindet.
Ein ebenerdiges Schlafzimmer sowie ein stilvolles Badezimmer machen das Wohnen auf einer Etage möglich und bieten Komfort für jedes Lebensalter. Im Obergeschoss erwarten Sie zwei weitere Schlafzimmer und ein zweites, hochwertig ausgestattetes Badezimmer. Die verwendeten Materialien sprechen für sich: Geölte Eichenholzfußböden, Natursteinbeläge sowie ausgesuchte Armaturen in den Bädern schaffen ein stilvolles, zeitloses Ambiente.
Das äußere Erscheinungsbild des Hauses ist geprägt vom historischen Verblendermauerwerk in Kombination mit cremefarbenen Holzfenstern, das dem Haus eine warme und gleichzeitig elegante Ausstrahlung verleiht. Die Terrassen wurden mit charaktervollen Krustenplatten gestaltet – ideal, um den Tag mit einem Blick ins Grüne ausklingen zu lassen.
Dieses Haus ist weit mehr als ein Neubau – es ist ein Ort mit Seele, mit Geschichte, und mit einem hohen Anspruch an Ästhetik und Qualität. Ein echtes Unikat für Menschen, die das Besondere lieben und Wert auf Authentizität, Ruhe und naturnahes Wohnen legen.

Daten und Fakten

Einheitennummer J&P-1143
Baujahr ca. 2024
Preis 995.000 €
Standort Oldenswort
Wohnfläche ca. 114,21 m²
Grundstück ca. 1.742 m²
Zimmer 4
Schlafzimmer 3
Badezimmer 2
Kamin Ja
Heizungsart Fußbodenheizung
Wesentlicher Energieträger Erdwärme
Energieausweis liegt zur Fertigstellung vor
Ausstattung Antiker Verblender, Reet, dänische Fenster, Fußbodenheizung
Käuferprovision 3,57% inkl. MwSt.
Logo der Firma DeFries, Baustoffe mit Geschichte auf hellem Hintergrund.
Visualisierung von einem Einfamilienhaus unter Reet, man kann den Deich im Hintergrund sehen. Das Haus ist seitlich dargestellt wodurch man die Eingangstür, den Weg zum Haus an der langen seite und auch die 4 Fenster an der kurzen, Straßengewandten Seite des Hauses erkennen kann. Das Grundstück ist von einer Hecke umgeben.

Visualisierung

Außenansicht

Sicht auf das Grundstück von der Vogelperspektive. In dem großen Garten ist eine quadratische Terrasse mit C Förmig angelegter Bepfanzung, sie ist mit einem Weg mit dem Haus verbunden. Das Haus ist im Hinteren, schmaleren Teil des Grundstücks. Das Reetdachhaus ist mit der kurzen Seite der Straße zugerichtet. Auf dem Grundstück steht ebenfalls ein Carport.
Logo der Firma DeFries, Baustoffe mit Geschichte auf hellem Hintergrund.

Partner

Naturerlebnis pur

Oldenswort liegt malerisch im Kreis Nordfriesland, Schleswig-Holstein, und zeichnet sich durch eine reizvolle Umgebung mit Deichen, Marschwiesen und Wasserläufen aus. Die Gemeinde befindet sich südwestlich der Kreisstadt Husum und bietet historischen Charme und Ruhe.Die Lage von Oldenswort bietet eine ideale Nähe zur charmanten Hafenstadt Tönning sowie zum bekannten Nordseebad St. Peter-Ording. Tönning, mit seinem historischen Hafen und dem Multimar Wattforum, ist ein reizvolles Ausflugsziel.

Gleichzeitig ermöglicht die Nähe zu St. Peter-Ording den Zugang zu den breiten Sandstränden und der einzigartigen Dünenlandschaft an der Nordseeküste. Oldenswort selbst verbindet nordfriesische Architektur mit einer entspannten Atmosphäre. Die umliegende Natur und die Nähe zu Tönning und St. Peter-Ording machen Oldenswort zu einem attraktiven Wohnort für Naturliebhaber und diejenigen, die die Vielfalt der Nordseeküste erleben möchten. Der Ortsteil Hemmerdeich überzeugt durch seine einzigartige Lage direkt am Eiderdeich.

Dies ist eine Abbildung des Grundrisses. Er zeigt die Raumaufteilung im Erdgeschoss. Es beginnt mit der Diele welche ins Wohnzimmer, ins Schlafzimmer, ins Badzimmer und in den Technikraum führt. Das Wohnzimmer ist in einer Offenen

EG

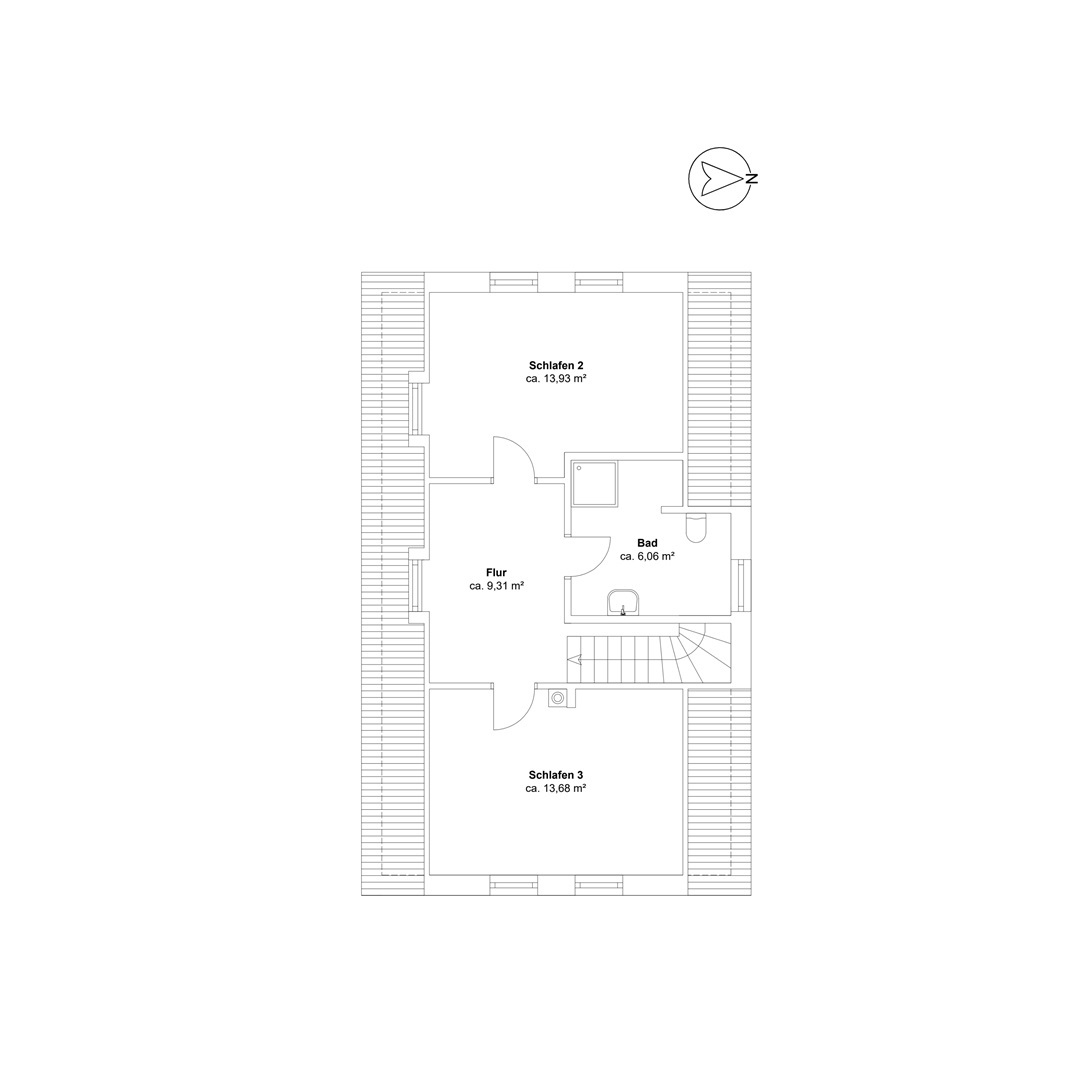
Diese Abbildung zeigtden Grundriss des Hauses. Es handelt sich um das Obergeschoss. Oben an der treppe angekommen gelangt man durch einen geräumigen Flur in zwei Schlafzimmer und in ein Badzimmer. Die Schlafzimmer sind auf der Ost und Westseite angeordnet. Das Bad liegt in der Mitte der beiden Schlafzimmer.

OG

Sonstiges

Sämtliche Angaben stammen von Informationen des Eigentümers, für deren Richtigkeit wir keine Gewähr übernehmen können. Wir bitten darum, uns unverzüglich zu Informieren, falls Ihnen dieses Angebot bereits bekannt ist. Beachten Sie bitte, dass dieses Angebot streng vertraulich ist, und jede unautorisierte Weitergabe zur Provisionspflicht führen kann. Irrtum und Zwischenkauf bleiben vorbehalten. Wir legen großen Wert auf die Vertraulichkeit dieser Informationen.

Haben wir Ihr Interesse geweckt? Fordern Sie das Exposé an.

Sie möchten direkt mit uns sprechen? Sie erreichen uns unter +49 4863 950 740. Wir freuen uns auf Ihren Anruf.

Pflichtfelder