Expose anfordern


Expose anfordern
695.000 Euro

Quartier 33 | NR° 4

Zum Verkauf steht eine hochwertige Neubau-Maisonettewohnung in zentraler Lage des Ortsteils Dorf, nur wenige Minuten vom Marktplatz entfernt. Trotz der hervorragenden Anbindung befindet sich das Objekt in angenehm ruhiger Lage am Rand eines kleinen Wäldchens und verbindet damit Zentrumsnähe mit naturnahem Wohnen. Die Architektur orientiert sich am klassischen Bäderstil mit weißem Mauerwerk, grauen Dachpfannen und farblich abgestimmten Fenstern. Entwurf und Planung stammen von einem renommierten Sylter Architekturbüro.

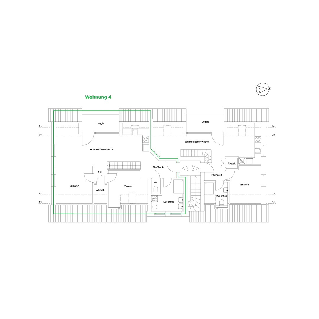
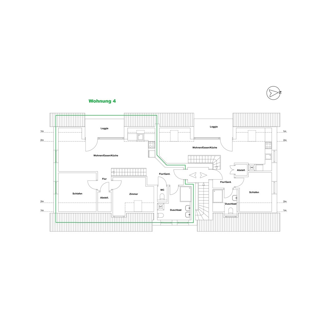
Der Zugang zur Wohnung erfolgt ebenerdig in das erste Obergeschoss. Bereits beim Eintreten überzeugt die klare und funktionale Grundrissgestaltung. Mittelpunkt der unteren Wohnebene ist der großzügige Wohn-, Ess- und Küchenbereich. Die offene Gestaltung schafft ein modernes Raumgefühl und bietet ausreichend Platz für einen großen Esstisch sowie eine komfortable Sofalandschaft. Große Fensterflächen sorgen für viel Tageslicht und eine freundliche Atmosphäre. Von hier aus gelangen Sie direkt auf die überdachte, nach Westen ausgerichtete Loggia, die zu sonnigen Nachmittags- und Abendstunden im Freien einlädt und einen schönen Blick ins Grüne bietet. Auf dieser Ebene befinden sich zwei gut geschnittene Schlafzimmer, die flexibel als Elternschlafzimmer, Kinderzimmer oder Homeoffice genutzt werden können. Beide Räume bieten angenehme Proportionen und gute Stellmöglichkeiten. Das moderne Duschbad ist mit einer bodengleichen Dusche, hochwertigen Armaturen sowie eleganten Wand- und Bodenfliesen ausgestattet. Zusätzlich steht ein separates WC zur Verfügung, was den Wohnkomfort im Alltag und bei Besuch deutlich erhöht. Ein praktischer Abstellraum sowie ein zentraler Flur mit Platz für eine Garderobe ergänzen die untere Etage sinnvoll. Über eine innenliegende Treppe erreichen Sie den ausgebauten Spitzboden. Dieser großzügige Bereich ist als Abstell- und Nutzfläche ausgewiesen, überzeugt jedoch durch seine Helligkeit und bietet vielseitige Nutzungsmöglichkeiten, etwa als Arbeitsbereich, Gästezone oder Hobbyraum. Ein weiterer separater Abstellraum schafft zusätzlichen Stauraum. Während die Hauptwohnebene mit einer komfortablen Fußbodenheizung ausgestattet ist, sorgt im Spitzboden eine separate Elektroheizung für angenehme Temperaturen. Dank moderner Einzelraumsteuerung lässt sich das Raumklima individuell regulieren. Die Ausstattung der Wohnung ist hochwertig und zeitlos gewählt. In den Wohn- und Schlafräumen wird ein warmer Parkettboden verlegt, der eine behagliche Atmosphäre schafft. Küche, Bad und WC erhalten elegante, pflegeleichte Fliesen. Glatt verputzte Wände in Weiß unterstreichen die Großzügigkeit der Räume und bieten eine ideale Basis für individuelle Einrichtungsideen. Dreifach verglaste Kunststofffenster gewährleisten einen hohen Wärme- und Schallschutz. Moderne weiße Innentüren mit Edelstahlgriffen sowie eine Sicherheitseingangstür runden das hochwertige Gesamtbild ab. Für eine nachhaltige Energieversorgung sorgt eine moderne Erdwärmeheizung, die ein zukunftsorientiertes und energieeffizientes Heizkonzept bietet. Da sich das Bauvorhaben derzeit in der Projektierungsphase befindet, können Ausstattungsdetails teilweise noch nach persönlichen Wünschen angepasst werden. Diese Maisonettewohnung vereint eine durchdachte Raumaufteilung mit zwei Schlafzimmern auf der unteren Ebene, zusätzlichen Nutzflächen im Spitzboden, hochwertiger Ausstattung und einer ruhigen, dennoch zentralen Lage. Sie eignet sich ideal für Paare, kleine Familien oder anspruchsvolle Eigennutzer, die modernes Wohnen in attraktiver Umgebung schätzen. Gerne stellen wir Ihnen dieses besondere Angebot persönlich vor.

Daten und Fakten

Einheitennummer J&P-1112
Preis 695.000 €
Standort St. Peter-Ording
Wohnfläche ca. 64,66 m²
Grundstück ca. 952 m²
Zimmer 4
Schlafzimmer 3
Badezimmer 2
Energieausweis nach Fertigstellung
Käuferprovision 2,38% inkl. MwSt.

Zentrumsnahe mit idyllischer Ruhe

Die Lage dieses Neubauprojekts in St. Peter-Dorf zeichnet sich durch eine besonders attraktive Kombination aus Zentrumsnähe und idyllischer Ruhe aus. Direkt am Rande eines kleinen Wäldchens gelegen, bietet das Objekt eine wunderschöne Möglichkeit, entspannte Spaziergänge in der Natur zu unternehmen und dabei die frische Luft und die grüne Umgebung zu genießen. Gleichzeitig erreichen Sie in wenigen Gehminuten das Ortszentrum von St. Peter-Dorf, das mit seinem Charme und seiner Ruhe zum Verweilen einlädt.

Das Dorf ist bekannt für seine malerischen Einkaufsstraßen, die von historischen Reetdachhäusern gesäumt werden und dem Ort einen besonderen Charakter verleihen. Hier finden Sie eine Vielzahl an Boutiquen, kleinen Geschäften und einer überschaubaren, aber feinen Gastronomie, die zu einem gemütlichen Bummel oder einer entspannten Mahlzeit einladen. Die Lage verbindet auf perfekte Weise den ursprünglichen Charme des Ortskerns mit der modernen Infrastruktur, die alle Bedürfnisse des täglichen Lebens abdeckt.

Trotz der Nähe zum Zentrum genießen Sie in dieser Lage eine ruhige Atmosphäre und die Möglichkeit, das Leben in St. Peter-Dorf in vollen Zügen zu erleben. Ob für Spaziergänge im Grünen, den Besuch der wunderschönen Einkaufsstraßen oder den schnellen Zugang zum Marktplatz – hier wohnen Sie in einem der charmantesten und zentralsten Orte St. Peter-Ordings, ohne auf die Ruhe und Natur verzichten zu müssen.

Grundriss

Grundriss

Sonstiges

Sämtliche Angaben stammen von Informationen des Eigentümers, für deren Richtigkeit wir keine Gewähr übernehmen können. Wir bitten darum, uns unverzüglich zu Informieren, falls Ihnen dieses Angebot bereits bekannt ist. Beachten Sie bitte, dass dieses Angebot streng vertraulich ist, und jede unautorisierte Weitergabe zur Provisionspflicht führen kann. Irrtum und Zwischenkauf bleiben vorbehalten. Wir legen großen Wert auf die Vertraulichkeit dieser Informationen.

Haben wir Ihr Interesse geweckt? Fordern Sie das Exposé an.

Sie möchten direkt mit uns sprechen? Sie erreichen uns unter +49 4863 950 740. Wir freuen uns auf Ihren Anruf.

Pflichtfelder