Expose anfordern


Expose anfordern
1.110.000 Euro

Exklusives Reetdachanwesen - Wohnen am Katinger Watt

Rückzugsort

Dieses außergewöhnliche Reetdachhaus vereint historischen Charme mit modernstem Neubaukomfort. Das ursprünglich im Jahr 1900 errichtete Gebäude wurde im Jahr 2022 vollständig neu aufgebaut und entspricht in sämtlichen baulichen, technischen und energetischen Belangen einem Neubau. Von der Bodenplatte über den Dachstuhl bis hin zu allen technischen Installationen wurde das Haus komplett neu errichtet, sodass vom ursprünglichen Gebäude keinerlei Bauteile erhalten geblieben sind. Um dennoch den authentischen Charakter eines klassischen norddeutschen Reetdachhauses zu bewahren, wurde die Fassade mit einem hochwertigen antiken Verblender versehen, der dem Anwesen seinen zeitlosen, historischen Charme verleiht.

Beheizt wird das Haus über eine hocheffiziente Erdwärmepumpe mit Tiefenbohrung in Kombination mit einer Fußbodenheizung in allen Räumen. Dieses nachhaltige Energiekonzept bietet höchsten Wohnkomfort und entspricht modernsten energetischen Anforderungen.

Die Lage ist außergewöhnlich und kaum zu übertreffen. Direkt am Deich und unmittelbar angrenzend an das Katinger Naturschutzgebiet eröffnet sich ein unverbaubarer Blick über das Katinger Watt. Die Weite der Landschaft, das wechselnde Licht und die beeindruckende Vogelwelt machen diesen Ort zu einem täglichen Naturschauspiel und zu einem idealen Rückzugsort für Naturliebhaber und Ruhesuchende.

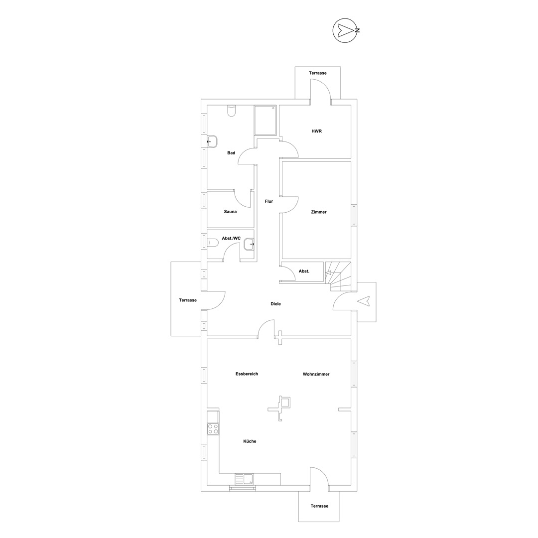
Auf einer Wohnfläche von etwa 163 m² verteilen sich vier Zimmer, darunter drei Schlafzimmer und zwei Badezimmer, auf einem Grundstück von ca. 473 m². Der einladende Eingangsbereich bietet Platz für eine großzügige Garderobe sowie eine kleine Sitzecke und schafft bereits beim Betreten des Hauses eine angenehme Atmosphäre. Zur linken Seite öffnet sich der offen gestaltete Wohn, Ess- und Küchenbereich, der durch seine Großzügigkeit und Helligkeit überzeugt und den zentralen Lebensmittelpunkt des Hauses bildet.

Das gesamte Objekt besticht durch eine außergewöhnlich hochwertige Materialauswahl. Naturstein und Blausteinfußböden, edle Eichenholzböden, massive Türzargen aus Eichenholz sowie liebevoll ausgewählte Delfter Fliesen in den Küchen und Badezimmerbereichen schaffen ein warmes, elegantes Ambiente mit nordischem Charakter. Eine klassische Klön-Schnack-Tür unterstreicht zusätzlich den traditionellen Stil des Hauses.

Im Erdgeschoss befinden sich zudem ein praktischer Abstellraum, der alternativ auch als weiteres Badezimmer genutzt werden kann, da sämtliche Anschlüsse bereits vorhanden sind, ein großzügiges Badezimmer mit Regendusche und integrierter Sauna, ein Hauswirtschaftsraum sowie ein ebenerdiges Schlafzimmer, das sich ideal auch für altersgerechtes Wohnen eignet.

Das Obergeschoss beherbergt zwei großzügige Schlafzimmer, jeweils mit integrierten Ankleidebereichen, sowie ein stilvoll gestaltetes Badezimmer. Ein besonderes Highlight ist der offene Galeriebereich, von dem aus sich ein beeindruckender Blick über den Deich und das Katinger Watt eröffnet und der sich hervorragend als Lese, Arbeits- oder Rückzugsbereich eignet.

Im liebevoll gestalteten Außenbereich befindet sich darüber hinaus ein kleines Sommerhaus, das ebenfalls beheizt ist und zusätzliche Gestaltungs- und Nutzungsmöglichkeiten bietet. Ob als Gästehaus, Atelier, Homeoffice oder privater Rückzugsort, dieser separate Bereich erweitert das Nutzungskonzept des Anwesens auf ideale Weise.

Diese Immobilie ist eine echte Rarität und eine kleine Perle, die durch ihre besondere Bauweise, die nachhaltige Technik, die hochwertige Materialauswahl und vor allem durch ihre einzigartige Lage überzeugt. Aufgrund ihrer Konzeption eignet sie sich hervorragend sowohl als exklusiver Erstwohnsitz als auch als hochwertiger Zweitwohnsitz. Gerne stellen wir Ihnen dieses besondere Anwesen im Rahmen eines persönlichen Besichtigungstermins vor.

Daten und Fakten

Einheitennummer J&P-1218
Baujahr ca. 1900
Preis 1.110.000 €
Standort Kating
Wohnfläche ca. 163 m²
Grundstück ca. 462 m²
Zimmer 4
Schlafzimmer 3
Badezimmer 2
Energieausweistyp Bedarfsausweis
Baujahr laut Energieausweis 1900
Heizungsart
Wesentlicher Energieträger Strom
Endenergiebedarf 27,6 kWh/(m²*a)
Energieklasse A+
Käuferprovision 3,57% inkl. MwSt.

Sommerhaus

Direkt am Katinger Watt

In privilegierter Lage unmittelbar am Deich und direkt am Katinger Watt gelegen, eröffnet sich hier ein Wohnort von seltener Qualität. Das Katinger Watt zählt zu den eindrucksvollsten Naturlandschaften der nordfriesischen Küste und bietet eine Kulisse von außergewöhnlicher Schönheit. Weite Horizonte, das stetig wechselnde Spiel von Licht, Wolken und Gezeiten sowie die beeindruckende Vielfalt an Vogelarten schaffen eine Atmosphäre von Ruhe, Freiheit und Ursprünglichkeit, die ihresgleichen sucht. Der Blick über das Watt, die Nähe zum Wasser und die unmittelbare Verbindung zur Natur machen diesen Ort zu einem täglichen Erlebnis und zu einem Rückzugsort auf höchstem Niveau.

Die Lage verbindet absolute Ruhe und Abgeschiedenheit mit einer hervorragenden Erreichbarkeit. In wenigen Minuten erreichen Sie die historische Hafenstadt Tönning mit ihrem maritimen Flair, dem charmanten Marktplatz, ausgewählten Restaurants, Cafés und einer sehr guten Infrastruktur. Ebenfalls in kurzer Fahrzeit liegt St. Peter-Ording, einer der exklusivsten Küstenorte Deutschlands, bekannt für seine kilometerlangen Sandstrände, die charakteristischen Pfahlbauten, ein vielseitiges Kultur- und Freizeitangebot sowie erstklassige Gastronomie und Wellnessmöglichkeiten.

Die Region steht für eine außergewöhnliche Lebensqualität. Die klare Nordseeluft, die Weite der Landschaft und die geschützte Natur des Nationalparks Schleswig-Holsteinisches Wattenmeer verleihen diesem Standort eine besondere Kraft und Ruhe. Ob als dauerhafter Lebensmittelpunkt oder als exklusiver Zweitwohnsitz, diese Lage bietet eine seltene Kombination aus Natur, Privatsphäre und gehobenem Küstenleben. Ein Ort für Menschen, die das Besondere suchen und Wert auf Authentizität, Qualität und einen unvergleichlichen Bezug zur Natur legen.

EG

OG

Sonstiges

Sämtliche Angaben stammen von Informationen des Eigentümers, für deren Richtigkeit wir keine Gewähr übernehmen können. Wir bitten darum, uns unverzüglich zu Informieren, falls Ihnen dieses Angebot bereits bekannt ist. Beachten Sie bitte, dass dieses Angebot streng vertraulich ist, und jede unautorisierte Weitergabe zur Provisionspflicht führen kann. Irrtum und Zwischenkauf bleiben vorbehalten. Wir legen großen Wert auf die Vertraulichkeit dieser Informationen.

Haben wir Ihr Interesse geweckt? Fordern Sie das Exposé an.

Sie möchten direkt mit uns sprechen? Sie erreichen uns unter +49 4863 950 740. Wir freuen uns auf Ihren Anruf.

Pflichtfelder