Expose anfordern


Expose anfordern
979.000 Euro

Doppelhaushälfte unter Reet in Böhl

Wenige Meter vom Strandübergang

Diese exklusive Doppelhaushälfte, erbaut im Jahr 2011, begeistert mit hochwertiger Ausstattung, durchdachtem Grundriss und einer traumhaften Lage am Rand der Böhlerheide. Das hintere der beiden Reetdachhäuser bietet eine unvergleichlich ruhige und private Wohnatmosphäre. Mit ca. 90 m² Wohnfläche und zusätzlichem Nutzraum im Spitzboden ist dieses Haus ein perfekter Rückzugsort für Erholungssuchende und Naturliebhaber.

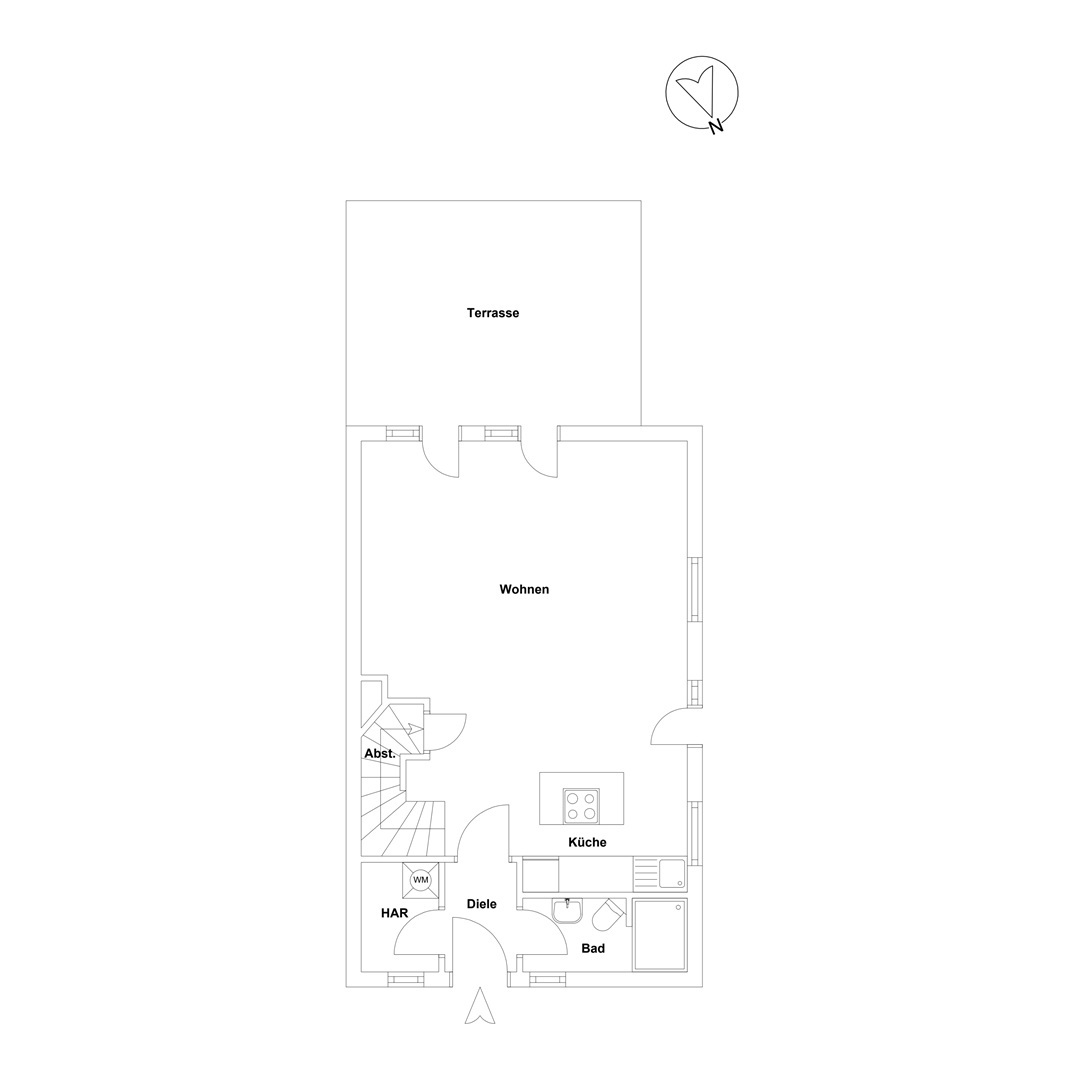
Beim Betreten des Hauses fällt sofort die sorgfältige Verarbeitung und die Liebe zum Detail auf: wunderschöner Eichenholzfußboden, aufwendige Fenster- und Türlaibungen sowie stilvolle Handgriffe schaffen ein warmes und einladendes Ambiente. Im Erdgeschoss erwartet Sie ein großzügiger, lichtdurchfluteter Wohn- und Essbereich, der durch den stilvollen Kamin und zahlreiche Fenster eine helle und behagliche Atmosphäre bietet. Die offene, hochwertig ausgestattete Küche mit Miele-Geräten – darunter ein Dampfgarer und eine praktische Kochinsel – lässt keine Wünsche offen. Ein Hauswirtschaftsraum bietet Platz für Waschmaschine, Trockner und die Haustechnik. Das moderne Badezimmer mit ebenerdiger Dusche und ein integrierter Abstellraum unter der Treppe runden das Erdgeschoss ab. Über eine wunderschöne Eichenholztreppe gelangen Sie in das Obergeschoss, wo zwei großzügige Schlafzimmer mit maßgefertigten Einbauschränken viel Komfort und Stauraum bieten. Das luxuriöse Badezimmer mit Badewanne und Dusche erfüllt höchste Ansprüche. Zusätzlich steht ein kleines Zimmer zur Verfügung, das als Abstellraum oder individuell genutzt werden kann. Ein weiteres Highlight ist der ausgebaute Spitzboden. Dieser abgetrennte Raum eröffnet zusätzliche Nutzungs- oder Gestaltungsmöglichkeiten. Das Haus beeindruckt mit zahlreichen hochwertigen Ausstattungsdetails, die ein warmes und zeitloses Ambiente schaffen. Es wird vollständig möbliert übergeben, sodass Sie sofort einziehen oder es direkt als Ferienhaus nutzen können.

Das Objekt befindet sich in einer sehr gut eingeführten Ferienvermietung und erzielt seit Jahren eine hohe Auslastung sowie attraktive Mieteinnahmen. Bitte beachten Sie jedoch, dass derzeit keine offizielle Genehmigung für die Ferienvermietung vorliegt.

Die ruhige Lage am Rand der Böhlerheide, nur wenige Meter vom Strandübergang entfernt, bietet somit eine ideale Lage für Strandliebhaber und Feriengäste. Die umliegende Natur lädt zu Spaziergängen und Fahrradtouren ein, während die ungestörte Umgebung absolute Privatsphäre garantiert. Gleichzeitig profitieren Sie von der Nähe zu den Annehmlichkeiten von St. Peter-Ording: Einkaufsmöglichkeiten, Restaurants, die Strandpromenade und das Meer sind schnell erreichbar. Diese wunderschöne Doppelhaushälfte vereint modernes Wohnen, hochwertige Ausstattung und eine einzigartige Lage. Überzeugen Sie sich selbst bei einem Besichtigungstermin.

Daten und Fakten

Einheitennummer J&P-1133
Baujahr ca. 2011
Preis 979.000 €
Standort St. Peter-Ording
Wohnfläche ca. 90,04 m²
Grundstück ca. 462 m²
Zimmer 4
Schlafzimmer 2
Badezimmer 2
Energieausweistyp Bedarfsausweis
Baujahr laut Energieausweis 2011
Heizungsart Zentralheizung
Wesentlicher Energieträger Gas
Endenergiebedarf 92 kWh/(m²*a)
Energieklasse C
Käuferprovision 3,57 % inkl. MwSt.

Schlafzimmer

Schlafzimmer II

Idyllisches St. Peter-Ording

Das Objekt befindet sich in einer der ruhigsten Lagen von St. Peter-Ording, im charmanten Ortsteil Böhl. Dieser Ortsteil gilt als Geheimtipp für Ruhesuchende und all jene, die das ursprüngliche, ortstypische Flair von St. Peter-Ording lieben. Geprägt von einer idyllischen Atmosphäre, reetgedeckten Häusern und weitläufigen Wiesen, bietet Böhl eine perfekte Balance aus Ruhe und Nähe zur Natur. Ein besonderes Highlight von Böhl ist der Böhler Leuchtturm, ein Wahrzeichen der Region, der bei Spaziergängen entlang des Deichs oder durch die Salzwiesen stets ins Blickfeld rückt. Die Umgebung lädt zu ausgedehnten Radtouren, Wanderungen und Ausflügen in die einzigartige Dünenlandschaft ein. Für Golfbegeisterte ist der Golfplatz in Böhl nur wenige Minuten entfernt – eine weitere Attraktion, die diesen Ortsteil so besonders macht. Darüber hinaus sorgen gemütliche gastronomische Einrichtungen für kulinarische Genüsse und ein entspanntes Lebensgefühl.

Die weiteren Ortsteile von St. Peter-Ording – Bad, Dorf und Ording – bieten eine abwechslungsreiche Mischung aus Aktivitäten, Einkaufsmöglichkeiten und Freizeitangeboten. Im Ortsteil Bad locken die bekannte Seebrücke und die beeindruckenden Wellnessangebote der Dünentherme. Ording ist berühmt für seinen weitläufigen Sandstrand, der besonders bei Wassersportlern und Strandliebhabern beliebt ist. Im Dorf, dem historischen Herzen von St. Peter-Ording, finden sich charmante Läden, Cafés und Restaurants, die zum Verweilen einladen. Trotz der ruhigen Lage des Ortsteils Böhl ist das gesamte Freizeitangebot von St. Peter-Ording bequem erreichbar. Die Kombination aus ursprünglichem nordfriesischem Charme, vielfältigen Aktivitäten und der Nähe zur Nordsee macht diese Lage zu einer der begehrtesten an der Westküste Schleswig-Holsteins.

EG

OG

DG

Sonstiges

Sämtliche Angaben stammen von Informationen des Eigentümers, für deren Richtigkeit wir keine Gewähr übernehmen können. Wir bitten darum, uns unverzüglich zu Informieren, falls Ihnen dieses Angebot bereits bekannt ist. Beachten Sie bitte, dass dieses Angebot streng vertraulich ist, und jede unautorisierte Weitergabe zur Provisionspflicht führen kann. Irrtum und Zwischenkauf bleiben vorbehalten. Wir legen großen Wert auf die Vertraulichkeit dieser Informationen.

Haben wir Ihr Interesse geweckt? Fordern Sie das Exposé an.

Sie möchten direkt mit uns sprechen? Sie erreichen uns unter +49 4863 950 740. Wir freuen uns auf Ihren Anruf.

Pflichtfelder