Expose anfordern


Expose anfordern
760.000 Euro

Auszeit Wohnen Westerhever | Vollerwiek NR° X

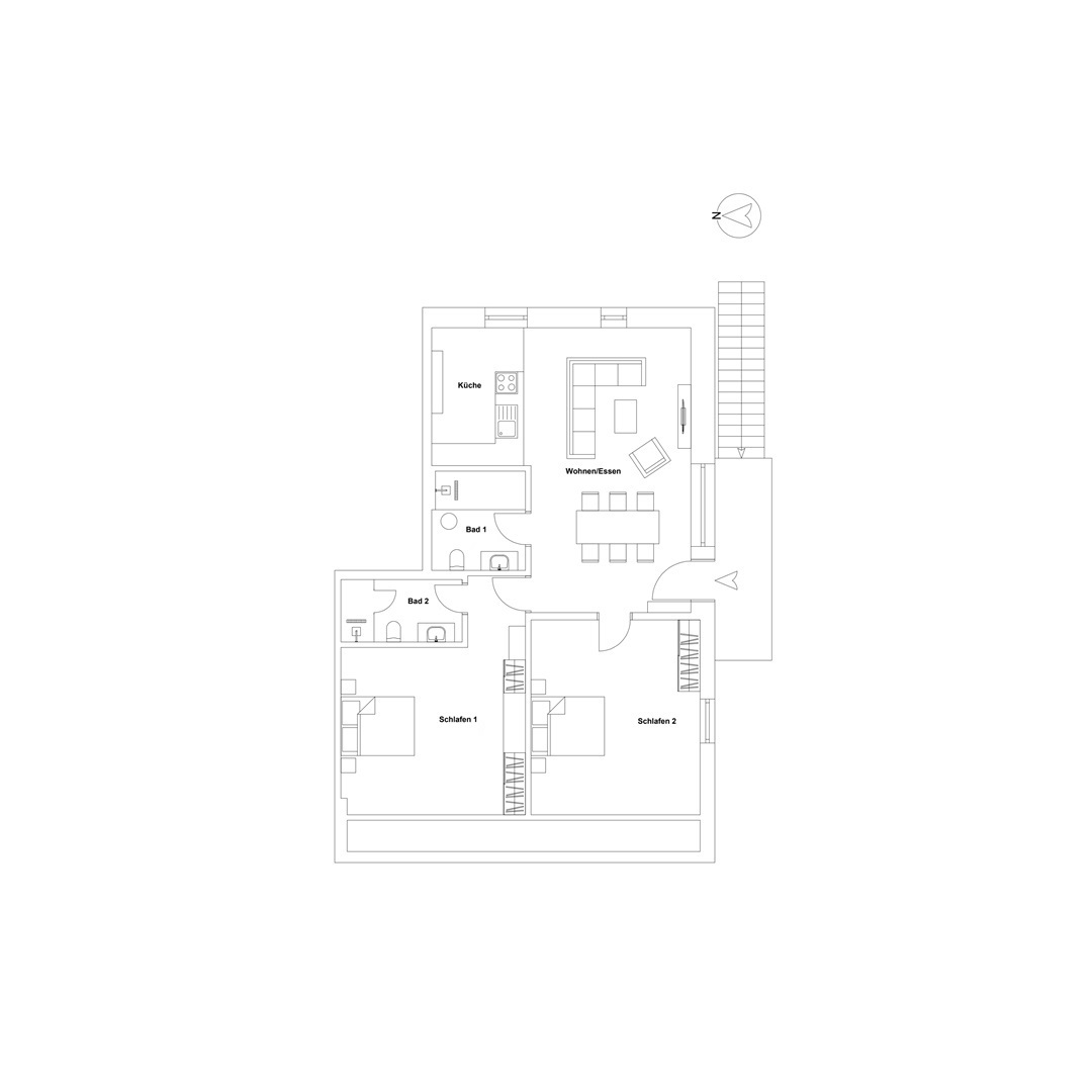
Willkommen in dieser exklusiven Obergeschosswohnung, die sich in der liebevoll restaurierten Alten Schule von Westerhever befindet. Mit einer großzügigen Wohnfläche von 81 m² bietet dieses stilvolle Zuhause den perfekten Rahmen für gehobenes Wohnen. Die Wohnung besticht nicht nur durch ihre Größe, sondern auch durch ihre einzigartige Atmosphäre und hochwertige Ausstattung.

Ein besonderes Highlight dieser Wohnung ist der eigene Treppenaufgang, der Ihnen ein Höchstmaß an Privatsphäre und Unabhängigkeit bietet. Sie betreten die Wohnung und werden sofort von einem großzügigen Wohnbereich empfangen, der zum Verweilen und Entspannen einlädt.

Die angrenzende offene Küche ist mit modernen Geräten der Firma Bosch ausgestattet und lässt keine Wünsche offen. Hier können Sie Ihrer kulinarischen Kreativität freien Lauf lassen und köstliche Gerichte zubereiten.

Die Wohnung verfügt über insgesamt drei Zimmer, darunter zwei geräumige Schlafzimmer. Ein Schlafzimmer bietet sogar ein eigenes Duschbad, was für zusätzlichen Komfort und Privatsphäre sorgt.

Des Weiteren stehen Ihnen ein weiteres Bad zur Verfügung, welches mit hochwertigen Armaturen und stilvoller Einrichtung überzeugt. Perfekt für den modernen Lebensstil und die Bedürfnisse anspruchsvoller Bewohner. Draußen erwartet Sie eine liebevoll gestaltete Gartenanlage und eine weitere eigene Terrasse, die zum Verweilen und Entspannen einlädt. Ein idyllischer Rückzugsort, um die Natur zu genießen und dem Alltagsstress zu entfliehen.

Die gesamte Innenausstattung wurde von dem renommierten Designer Olaf Kitzig konzipiert und besticht durch ihre zeitlose Eleganz und hochwertige Verarbeitung. Diese Wohnung bietet ein exklusives Wohngefühl in einer historischen Umgebung und ist ein wahres Juwel in Westerhever.

Daten und Fakten

Einheitennummer J&P-1042
Baujahr ca. 1879
Preis 760.000 €
Standort Westerhever
Wohnfläche ca. 88,28 m²
Grundstück ca. 13050 m²
Zimmer 3
Schlafzimmer 2
Badezimmer 2
Energieausweis Bedarfsausweis
Heizungsart Fußbodenheizung
Wesentlicher Energieträger Erdwärme
Endenergiebedarf 27,3 kWh/(m²*a)
Baujahr Energieträger 2024
Energieklasse A+
Käuferprovision 2,38% inkl. MwSt.

Einzigartige Lage in Westerhever

Willkommen in Westerhever, einem Ort von unvergleichlicher Schönheit und Ruhe an der Nordseeküste Schleswig-Holsteins. Hier, in der ehemaligen alten Schule von Westerhever, erwartet Sie ein einzigartiges Wohnprojekt mit 15 luxuriösen Ferienwohnungen.

Umgeben von der atemberaubenden Weite und Natur Westerhevers, bietet dieses Projekt seinen Bewohnern eine unvergleichliche Lebensqualität. Der Ort ist bekannt für seine unberührten Landschaften, endlosen Horizonte und die faszinierende Nordseeküste. Die Ruhe und Gelassenheit der Umgebung laden zum Entspannen und Verweilen ein.

Die Nähe zu St. Peter-Ording, einem beliebten Nordseeort, bietet den Bewohnern vielfältige Möglichkeiten für Freizeitaktivitäten und Erholung. Hier erwarten Sie endlose Sandstrände, malerische Dünen und eine lebendige Atmosphäre.

Die einzigartige Lage des Projekts in Westerhever wird durch den ikonischen Westerhever-Leuchtturm geprägt, der majestätisch über die Küstenlandschaft ragt. Dieses historische Wahrzeichen verleiht der Umgebung einen ganz besonderen Charme und macht sie zu einem Ort von zeitloser Schönheit.

Erleben Sie das Beste, was die Nordseeküste zu bieten hat, in diesem exklusiven Wohnprojekt in der alten Schule von Westerhever. Willkommen in Ihrem neuen Zuhause, wo Luxus, Natur und Geschichte auf einzigartige Weise verschmelzen.

Grundriss

Sonstiges

Sämtliche Angaben stammen von Informationen des Eigentümers, für deren Richtigkeit wir keine Gewähr übernehmen können. Wir bitten darum, uns unverzüglich zu Informieren, falls Ihnen dieses Angebot bereits bekannt ist. Beachten Sie bitte, dass dieses Angebot streng vertraulich ist, und jede unautorisierte Weitergabe zur Provisionspflicht führen kann. Irrtum und Zwischenkauf bleiben vorbehalten. Wir legen großen Wert auf die Vertraulichkeit dieser Informationen.

Haben wir Ihr Interesse geweckt? Fordern Sie das Exposé an.

Sie möchten direkt mit uns sprechen? Sie erreichen uns unter +49 4863 950 740. Wir freuen uns auf Ihren Anruf.

Pflichtfelder